Lussuoso trilocale con terrazzo in Via Monviso 28
Il lussuoso trilocale con terrazzo situato in Via Monviso al civico n. 28 è adatto a investitori, coppie o famiglie in cerca di una sistemazione comoda e da condividere, in una zona ben servita dai vari mezzi di trasporto e servizi commerciali.
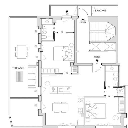
Sito al 5° piano con ascensore in uno stabile di totale 6 piani, il lussuoso trilocale con terrazzo, di circa 110 mq, si presenta in ottima manutenzione, in quanto ristrutturato, verrà consegnato semi-arredato ed è così suddiviso: spazioso ingresso che affaccia sulla zona living con cucina a vista, ampia e luminosa, con area pranzo – un terrazzo di oltre 44 mq – camera master– seconda camera da letto oppure camera studio (c’è la possibilità di realizzare una variante di progetto con due camere matrimoniali più grandi.) – ampio bagno rifinito con piastrelle in ceramica in tonalità grigio chiaro, dotato di lavabo e sanitari sospesi dal design moderno ed essenziale con box doccia realizzato su misura, in ardesia satinata bianca – zona lavanderia.
Sono stati realizzati nuovi impianti elettrici e idraulici, il tutto impiegando materiali di alta qualità e finiture ricercate.
Il lussuoso trilocale con terrazzo è dotato di riscaldamento centralizzato a radiatori con alimentazione a gas; aria condizionata autonoma con split; infissi doppio vetro in PVC; pavimento in parquet in rovere a doga larga; doppia esposizione; videocitofono; impianto d’allarme; porta blindata.
L’immobile si trova all’interno di uno stabile degli anni ’80 con con servizio di portineria intera giornata e servizio di pulizia condominiale, in una zona ben servita dai vari mezzi di trasporto, oltre ai vari servizi di utilizzo quotidiano come: farmacie, bar e ristoranti, supermercati, negozi, ecc.
A 8 minuti a piedi dal lussuoso trilocale con terrazzo infatti troviamo la fermata della metro MM Gerusalemme (linea lilla).
Spese condominiali: circa 150,00 €/al mese.
Disponibile da: Febbraio 2026.
Le informazioni fornite hanno scopo puramente indicativo e non costituiscono vincolo contrattuale.
☎ 02.29400387 / +39 3478439417
✉ info@villasrl.com
La presente pubblicità è da considerarsi puramente indicativa e non costituisce in nessun caso vincolo contrattuale.
Scopri altre esclusive opportunità immobiliari sul nostro sito web. Offriamo anche i seguenti servizi:
• Consulenza e valutazione dell’immobile
• Stesura e registrazione dei contratti di locazione
• Gestione del patrimonio immobiliare
Contattaci per maggiori dettagli o per fissare un sopralluogo!
Indirizzo Immobile
Classe Energetica
| A+ | A | B |
175.00 |
Classe energetica C
C
| D | E | F | G | H |
