Affascinante bilocale con giardino in Via Plana 14
All’interno dello stabile sono presenti altri 5 bilocali in vendita, di diverse metrature e con diverso prezzo di vendita.
L’affascinante bilocale con giardino situato in Via Giovanni Antonio Plana al civico n. 14 è adatto a investitori, coppie o soggetti singoli in cerca di una sistemazione comoda, confort e moderna, in una zona ben servita dai vari mezzi di trasporto e servizi commerciali.
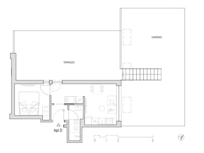
Sito al piano terra, l’affascinante bilocale con giardino, di circa 52 mq, si presenta in ottima manutenzione, in quanto ristrutturato, ed è così suddiviso: ingresso – zona living con cucina a vista – giardino – ampio terrazzo – camera matrimoniale – bagno .
L’intervento nasce da una completa riqualifica di un intero piano che è in completa ristrutturazione. Per quanto riguarda le finiture, il soggiorno e la camera sarà in parquet. I bagni invece verranno utilizzate piastrelle in ceramica (30x60cm) colore grigio chiaro e verrà installato un lavabo e sanitari sospesi dalle linee moderne ed essenziali. Il box doccia sarà realizzato su misura in ardesia satinata bianca. L’affascinante bilocale con giardino verrà consegnato arredato e fatto di materiali di pregio e finiture moderne, pensate per offrire massimo comfort e stile.
Vi è inoltre la possibilità di acquistare una cantina di 8mq, per una cifra di 8.000,00€.
L’affascinante bilocale con giardino è dotato di riscaldamento centralizzato a radiatori ; aria condizionata autonoma con split e motore posizionato in locale tecnico; infissi doppio vetro in PVC; pavimento in parquet; realizzazione di nuovo impianto elettrico certificato. Predisposizione ed installazione placche Bticino Living Now che offrono design elegante e funzionalità avanzate.
L’immobile si trova all’interno di uno stabile degli anni ’80 con con servizio di portineria e servizio di pulizia condominiale, in una zona ben servita dai vari mezzi di trasporto, oltre ai vari servizi di utilizzo quotidiano come: farmacie, bar e ristoranti, supermercati, negozi, ecc.
A 8 minuti a piedi dall’affascinante bilocale con giardino infatti troviamo la fermata della metro MM Portello (linea lilla).
Spese condominiali: in fase di verifica.
Disponibile da: Febbraio 2026.
Le informazioni fornite hanno scopo puramente indicativo e non costituiscono vincolo contrattuale.
☎ 02.29400387 / +39 3478439417
✉ info@villasrl.com
La presente pubblicità è da considerarsi puramente indicativa e non costituisce in nessun caso vincolo contrattuale.
Scopri altre esclusive opportunità immobiliari sul nostro sito web. Offriamo anche i seguenti servizi:
• Consulenza e valutazione dell’immobile
• Stesura e registrazione dei contratti di locazione
• Gestione del patrimonio immobiliare
Contattaci per maggiori dettagli o per fissare un sopralluogo!
